好消息!
汉阳墨水湖东岸一居民区
将新增一处具创意、有活力
自然人文完美结合
的现代商业景观
日前,该地块正面向全国在校大学生
公开征集商业景观设计方案
只要你热爱设计、创意无限
就能参与
最高可获6000元奖金
报名时间仅有三天
欢迎符合报名条件的团队或个人
及时报名、踊跃应征
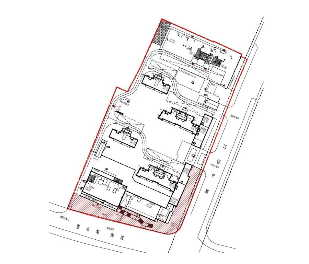
据悉,此次征集的商业景观点位位于境湖玥地块东南侧,面积约1500平方米,西侧紧邻墨水湖公园,北侧为江欣苑路,南侧为墨水湖南路,东侧为江堤中路,四周是较为成熟的住宅区,生活气氛浓厚。
活动由武汉市汉阳区自然资源和城乡建设局、武汉市汉阳城市更新投资有限公司举办,旨在引导青年群体关注城市空间优化,将前沿学术思想与武汉 “两江三镇” 空间特色、万亿级产业集群布局相结合,打造美好生活环境。


△红色区域为此次征集范围。
征集对象面向全国(含港澳台)从事风景园林、城乡规划、建筑学、环境艺术设计、公共艺术等专业的在校大学生(含专科生、本科生、硕士生、博士生)。可以个人或团队名义参选,团队参选人员不超过5人,每名参选人员限报1件作品(作品可设1—2名指导教师,每名教师参与指导作品不超过2件)。报名时间为即日至2025年3月27日23:59前,参赛作品提交时间截止为2025年05月11日23:59前。
根据评选结果,向各设计团队或个人进行表彰,发布获奖证书。方案将评选出一等奖3名,获得6000元奖金和获奖证书;二等奖6名,获得3000元奖金和获奖证书;三等奖9名,获得1000元奖金和获奖证书;优秀奖10名,获得500元奖金和获奖证书。(上述奖金均为税前金额)
“我们将举行系列面向在校大学生群体的方案征集,本次境湖玥地块是第一期。”武汉市汉阳区自然资源和城乡建设局相关负责人表示,将积极搭建更多平台,为青年人提供创新创业空间,全力营造城区“青和力”,助力汉阳打造汉阳青年创业城。

长按识别二维码识别
概念方案征集报名表

关注